Чтение онлайн

ЖАНРЫ

Как отопить загородный дом

Платонов О. А.

Шрифт:
www.grundfos.ru

Приложение 1

Спецификация оборудования котельной (дом площадью 300 м2) на котле АСV

Спецификация системы отопления

Примечание. Расчет – ориентировочный, окончательная стоимость комплекта уточняется по реальным условиям проекта.

Приложение 2

Спецификация оборудования

для отопления дома (площадь – 300 м2) на котле CHAPPEE EDENA PROGRESS1101/32 SEB. (www.maestro.ru)

Спецификация системы отопления

Примечание. Расчет – ориентировочный, окончательная стоимость комплекта уточняется по реальным условиям проекта.

Оборудование подобрано с учетом наличия одного независимого контура, работающего в автоматическом погодозависимом режиме.

Спецификация оборудования для отопления дома (площадь – 300 м2) на котле DE DIETRICH DTG 137 ECO.NOX 36 KW

Спецификация системы отопления для дома площадью 250–300 м2.www.rusklimat.ru

Приложение 3. Пример системы водяного отопления индивидуального жилого дома

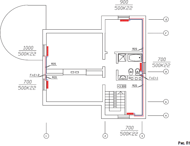
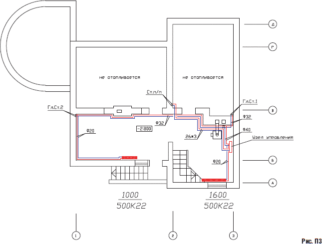
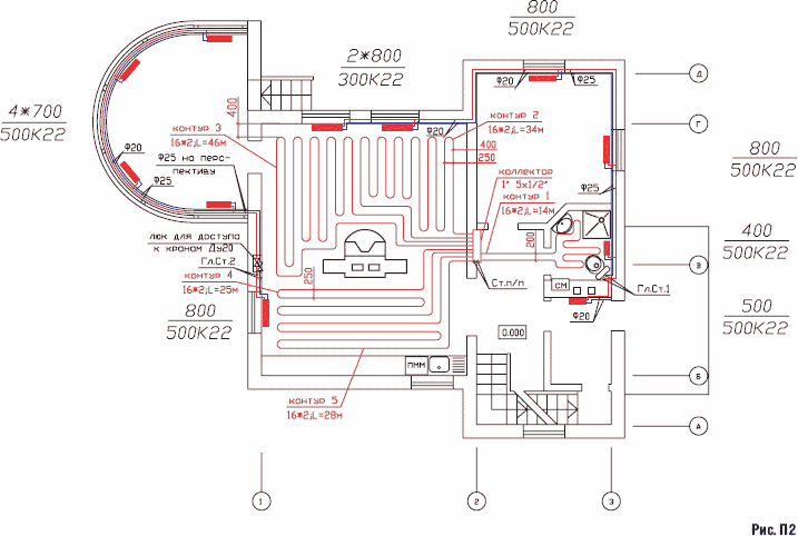
Два жилых этажа (рис. П.1, П.2) и отапливаемая часть цоколя (рис. П.3) имеют общую площадь 216 м2. (На рис.: 1, 2, 3 – вертикальные строительные оси; А, Б, В, Г – гаризонтальные; 20, 32, 40 – диаметры труб; 1000/500К22 – указание типа отопительного прибора: длина 1000 мм, высота 500 мм, тип-К – с боковой подводкой трубопроводов, тип 22 – две пластины, два типа оребрения.) Нагрузка на систему отопления – 22,4 кВт, на систему горячего водоснабжения – 28,6 кВт. Топливо – магистральный газ.

Система отопления выполнена по двухтрубной схеме с двумя главными стояками (Гл. Ст. 1 и Гл. Ст. 2). Дополнительно применена система подогрева пола в помещениях первого этажа. «Теплые полы» подключены к отдельному стояку (Ст. п/п). В качестве отопительных приборов применены панельные радиаторы Henrad, каждый из которых оборудован ручным терморегулировочным вентилем. Материал труб – армированный полипропилен.

Источником автономного теплоснабжения выбран двухконтурный стальной водогрейный котел ACV, оснащенный вентиляторной газовой горелкой. И контур отопления, и контур «теплых полов» оснащены своим циркуляционным насосом. Управление системой отопления осуществляется с использованием комнатного термостата с недельным программированием. Термостат управляет электроприводом специального 3-ходового смесителя, который подключает контур отопления к котлу или временно отключает от него, прекращая тем самым подогрев теплоносителя.

В системе отопления реализован температурный режим 90/70 °С, в системе «теплого пола» – 50/40 °С. На системе теплого пола установлен специальный смеситель с электроприводом, позволяющий подавать в этот контур теплоноситель с меньшей, чем в отопительные приборы, температурой.

Приложение 4.

Расчет напольного отопления

Теплотехнические расчеты

В ходе теплотехнического расчета теплого пола обычно решается одна из следующих задач:

а) определение требуемой средней температуры теплоносителя по известному удельному тепловому потоку, полученному в результате расчета теплопотребности помещения;

б) определение удельного теплового потока от теплого пола при известной средней температуре теплоносителя.

Как правило, при полном напольном отоплении (без использования радиаторного отопления), определяется помещение с наибольшими удельными теплопотерями. Для этого помещения производится расчет по схеме «а», то есть определяется требуемая средняя температура теплоносителя. Для остальных помещений, эта температура принимается в качестве заданной величины, и дальнейшие расчеты ведутся по схеме «в».

В обоих случаях определяющим критерием расчета является температура поверхности пола, которая не должна превышать нормативных величин (см. таблицу 1).

Следует отметить, что по западным нормативам температура поверхности пола допускается более высокой, чем по российским нормам, что следует учитывать при использовании импортных расчетных программ.

Методик теплотехнического расчета теплых полов существует несколько. В каждой из методик заложен ряд допущений и ограничений, которые также не следует забывать при проектировании.

Таблица 1. Допустимые температуры поверхности пола

Метод коэффициентов

Метод основан на применении поправочных коэффициентов к известным, экспериментально установленным, удельным тепловым потокам от эталонного теплого пола при различных температурных напорах (см. таблицу 2).

q = t1 Kтр Kпп Kb Kc KD,

где: q удельный тепловой поток, Вт/м2;

t – логарифмическая разность между температурой теплоносителя и температурой воздуха в помещении, °С;

Ктр – приведенный коэффициент теплопередачи стенки трубы, Вт/м2К;

Кпп – коэффициент, зависящий от термического сопротивления покрытия пола;

Кb – коэффициент шага укладки труб;

Кс – коэффициент толщины стяжки над трубой;

KD – коэффициент, учитывающий наружный диаметр труб.

Логарифмическая разность температур:

где: t1 и t2 – температуры соответственно прямого и обратного теплоносителя, °С;

tв – расчетная температура воздуха в помещении, °С.

Поделиться с друзьями: