Чтение онлайн

ЖАНРЫ

Кладка печей своими руками
Шрифт:

Размещать печь в средней части стены нежелательно, так как она займет значительную часть полезной площади.

Установка в каждой комнате отдельной печи имеет свои преимущества, так как в теплое время не приходится топить все печи, а топят только те, которые необходимо.

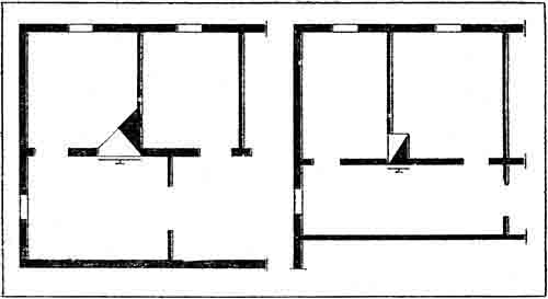
При коридорной планировке здания можно одну печь размещать так, чтобы она отапливала два соседних помещения и выходила топкой в коридор. Вместо коридора одной печью можно одновременно отапливать три комнаты. На рисунке 19 показан вариант размещения угловой и прямоугольной печей, отапливающих три комнаты.

Рис. 19. Установка угловой

и прямоугольной печей, отапливающих три комнаты

В квартире для одной семьи желательно класть одну печь на две комнаты.

При всех случаях следует помнить о том, чтобы теплоотдача печей распределялась пропорционально теплопотерям каждого помещения.

Вариант размещения печи для отопления четырех комнат показан на рисунке 20. Такая печь имеет большие размеры и занимает много места. Кроме того, ее стенки выделяют тепло пропорционально потерям каждой комнаты. В этом случае две комнаты проходные.

Рис. 20. Установка одной печи для отапливания четырех комнат

В деревянных зданиях ограничен выбор мест установки печей. Там приходится применять насадные трубы. Печи с насадными трубами удобно размещать в любом месте, но следует предусмотреть, чтобы труба не попадала на балку перекрытия и стропила. Насадные трубы ставят только на массивных толстостенных печах. Тонкостенные печи в целях противопожарной безопасности не рекомендуется строить с насадными трубами.

Коренные трубы необходимы для отвода дымовых газов от кухонных очагов и одновременно дымовых газов от отопительных печей. Для этого в коренной трубе делают нужное количество вертикальных дымовых каналов, так называемых стояков (рис. 21).

Рис. 21. Подключение печей к коренной трубе:

1 — печи; 2 — коренная труба; 3 — вентиляционный канал; 4 — дымовые каналы

Рис. 22. Установка печей в комнатах дома и их подбор на теплоотдачу:

1, 2 — комнаты; 3 — кухня; 4 — прихожая

Рассмотренный вариант показывает целесообразность возведения коренной трубы в доме с тремя-четырьми комнатами.

Если в доме несколько комнат, каждую из которых занимает отдельная семья, желательно ставить столько печей, сколько имеется комнат.

Когда предусматривается кухня-столовая, то целесообразнее класть комбинированные отопительно-варочные печи с обязательным устройством вентиляции. Вообще надо всегда предусматривать вентиляцию комнат, кухни, санузла через вытяжные каналы, которые располагают рядом с дымоходами. Вытяжные каналы, нагреваясь от дымоходов, тем самым способствуют более интенсивной вентиляции. Для строительства индивидуальных домов имеется множество типовых проектов, в которых тщательно разработаны и подобраны всевозможные печи и указаны места их расположения.

Определение размеров печей

Размеры печей определяют или их подбирают на основании расчета теплопотерь отапливаемых помещений. Точный расчет теплопотерь сложен и его выполняют по специальному методу и имеющимся нормам, которые предусматривают, что теплоотдача печи при двух топках в сутки может быть на 15 % больше или меньше теплопотерь помещения.

При расчете отопления необходимо знать теплопотери всех видов конструкций дома: стен, дверей, оконных проемов, перекрытий, материалов,

из которых сделаны стены, высоту, наружную температуру воздуха и др. При неправильном расчете или выборе печи она будет или много выделять тепла, или наоборот. Правильно выбранная печь должна соответствовать средней часовой теплоотдаче и такой же часовой теплопотере. Таким образом, количество теряемого помещением тепла должно соответственно возмещаться теплом, выделяемым печью.

Рассмотрим самые простейшие и приближенные способы определения размеров печей.

Пример 1. Зеркало печи, выходящей в отступку, дает в 2 раза меньше тепла, щитки от плиты — в 1,5 раза меньше, чем печи, поэтому их поверхность должна быть в 2–2,5 раза больше указанных данных

Размер площади помещения при высоте помещения 3 м, кв. м Поверхность печи в зависимости от размера помещения и температуры наружного воздуха (—25 °C), кв. м
неугловое с одним углом с двумя углами прихожая
8 1,25 1,95 2,10 3,40
10 1,50 2,40 2,60 4,50
15 2,30 3,40 3,90 6,00
20 3,20 4,60 5,20
30 4,60 6,90 7,80

Пример 2. В этом расчете печи подбирают по кубатуре здания, которую определяют по наружному периметру с последующим умножением на 21. Это число является количеством тепла в килокалориях, требуемых для обогрева 1 куб. м здания до температуры плюс 18 °C и при наружной температуре воздуха до минус 30 °C.

По вышеприведенным данным находят потребную теплоотдачу печи.

В нашем случае имеется дом размером по наружному обмеру 6,6x7,4 м, высота помещения 3 м. Стены кирпичные, толщиной 540 мм. В доме имеются две жилые комнаты 1, 2, кухня 3 и прихожая 4 (рис. 22).

Рассмотрим подбор печи для кухни и прихожей:

объем кухни 54,39 куб. м. (3,7х4,0х3,0)

объем прихожей 18,87 куб. м. (3,7х1,7x3,0)

Всего 73,26 куб. м.

Рассчитаем теплоотдачу печи: 73,26х21=1538 ккал/ч.

Каждый квадратный метр зеркала печи излучает в среднем 300 ккал/ч. Для определения площади нагрева печи необходимо 1538 ккал/ч разделить на 300, получаем 5,1 кв. м. Эту цифру можно округлить до 5 кв. м или повысить до 5,2–5,4 кв. м.

Чтобы найти размеры печи, следует имеющуюся площадь зеркал печи разделить на активную высоту печи, то есть ту высоту, которая нагревается. В данном случае она равняется 2,2 м. После деления площади зеркала печи на ее высоту получаем периметр печи 5,1:2,2=2,3 м (округленно 2,5 м).

Полученный периметр печи делим на два и получаем две стороны печи, то есть длину и ширину, вместе взятые они будут равны 1,15 м (2,3:2). Если ширина печи 510 мм, то ее длина должна быть 640 мм, а в плане 510x640 мм.

Таким образом, воспользовавшись этим примером, можно подобрать размер печи для любого помещения. Необходимо указать, что кроме печи в кухне имеется плита, которая может выделять при двух топках в сутки от 600 до 900 ккал/ч.

Конечно, вместо печи можно поставить к плите отопительный щиток, работающий от плиты, выделяя до 1200 ккал/ч. Имеются щитки с плитой и с отдельной топкой, тогда их теплоотдача еще выше.

Поделиться с друзьями: