Чтение онлайн

ЖАНРЫ

Малый автобизнес: с чего начать, как преуспеть
Шрифт:

Линейный фильтр, пропускная способность 2500 л/мин, степень очистки 0,01 мкр, макс. давление 16 атм, присоединительный размер 3/4" (рекомендуется для проведения покрасочных работ)

Оборудование шиномонтажное

Станок шиномонтажный автомат, для дисков 9,5" 18"/11,5"20,5", 0,55 кВт, 380. В, встроенная система взрывной подкачки для бескамерных шин

Пистолет для подкачки шин с манометром и подводкой

Вулканизатор настольный с реле времени, пневмоприжим, 145 град, 600. Вт, раскрытие 100 мм

Ванна для проверки колес до 16" на герметичность с ручным перемещением колеса

Оборудование

для балансировки колес

Вращающийся цветной дисплей, 220. В, точность 1 г, масса колеса до 65 кг, (10" … 24"), программа работы для двух операторов, автоввод размеров колеса, программа «скрытый грузик», 7 программ ALU, набор конусов, кожух

Станок для проточки дисков

Станок проточки тормозных дисков без демонтажа

Стенд проверки тормозов компьютерный, со встроенным весовым механизмом, монитор 15", ПДУ, программа 4 WD, устройство блокировки роликов при съезде, максимальная нагрузка на ось 3000 кг

Стенд регулировки схода/развала колес

Стенд схода/развала инфракрасный, 4 измер головки, 8 CCD сенсоров, стойка 17" с цветным монитором, выдающаяся графика, встроенное зарядное устройство, база данных (7000 а/м), 4 защелки для дисков 10"...19" со спойлер-адаптером, струйный принтер, принадлежности

Два стандартных поворотных круга, макс. нагрузка при измерении 1000 кг, макс. пропускная нагрузка 1500 кг

Оборудование моечное

Мойка автоматическая 6 программ + мойка днища

Подъемники малотоннажные

Домкрат подкатной, гидравлический, г/п 2000 кг, высота подъема 515 мм, длина 720 мм

Стойка гидравлическая для снятия. КПП, г/п 300 кг, максимальная высота подъема 2153 мм, высота перемещения подставки 892 мм

Кран нескладной гаражный (типа «гусь») г/п 500 кг, высота подъема 2070 мм, односторонний гидроцилиндр

Пресс напольный, давление 15 т (ручной привод), ход штока 45 мм

Двойной стенд для разборки двигателя

Стапель для кузовного ремонта

Стапель «SEVENE +. СА1МА№>

Система MZ

Покрасочный цех

Камера покрасочно-сушильная «PRESTIGE» ECN 7,2. М1,5 W1,5

Место подготовки автомобиля, модель «1600» с занавесками

Машины моечные

Мойка. ВД 30170 бар, 470-1000 л/ч, 6,7 кВт, 133 кг

Фильтр тонкой очистки для HD, HDS

Пылесосы технологические

Пылесос, разрежение 218 мбар, 65 л, 2530. Вт, 25 кг

Шкафы для хранения одежды

Шкаф разборный металлический, двухсекционный. Врезной замок 1860x600x500 мм

Шкаф разборный металлический, односекционный. Врезной замок 1860x300x500 мм

Складское и торговое оборудование

Стеллаж быстросборный, металлический, 4 полки 2000x1000x300 мм

Стеллаж быстросборный металлический, 5 полок 2000x1000x500 мм

Комплект многоуровневого складского оборудования для хранения запасных частей к автомобилям (группы хранимых запасных частей: мелкие, средние, крупногабаритные и кузовные)

Комплект торговых витрин, прилавков, стеллажей для реализации аксессуаров, запасных частей, расходных материалов и т. д.

Офисное оборудование

Офисная мебель

Комплект рабочей мебели (стол рабочий, тумба подкатная, стол приставной, шкаф для бумаг, гардероб, кресло рабочее, стул посетителя)

Комплект рабочей мебели (стол рабочий, кресло, стул посетителя, тумба)

Мягкие группы (кожа +

кожзаменитель)

Стол обеденный со стульями

Средства вычислительной и организационной техники

Сервер

Структурированная кабельная сеть (СКС)

Персональный компьютер

Сетевой принтер

Факсимильный аппарат

Ксерокопирующий аппарат

Телефонный аппарат абонентский

Шредер

Дополнительное оборудование

Сейф засыпной

Сейф портативный

Шкаф металлический

Телевизионный приемник бытовой

Видеомагнитофон бытовой

Музыкальный центр бытовой

Холодильник бытовой

Кофеварочный аппарат

Микроволновая печь

Крупный сервис сети «Бош. Авто. Сервис»

1 – вход на верхний этаж; 2 – бюро; 3 – бытовое помещение; 4 – раздевалка + умывальная; 5 – механическая мастерская; 6 – туалет; 7 – склад; 8 – мастерская по ремонту оборудования; 9 – мастерская по ремонту. ТНВД; 10 – стенд для определения мощности; 11 – легковой автомобиль; 12 – вход для покупателей; 13 – вход для покупателей в отдел продажи; 14 – осмотровая канава, глубина «1,40 м; 15 – скат макс. 0, 75 %;16 – желоб для отвода воды через отделитель масла и бензина; 17 – отвод отработанных газов; 18 – стенд для тормозных испытаний; 19 – двухплунжерный автомобильный подъемник с платформой; 20 – легкая строительная стенка со звукопоглотителем; 21 – керамическое покрытие пола; 22 – Tune Up; 23 – стенд для функциональных испытаний, определения мощности и анализа; 24 – керамическое покрытие пола; температура помещения 15 °C; освещенность 350 люкс; 25 – отопление; 26 – коридор; 27 – пост мойки; 28 – помещение для проверки. ТНВД; 29 – мастерская IA4; 30 – аварийный выход; 31 – навес; 32 – механические работы; 33 – линия для автоматической мойки; 34 – продажа и приемка на техобслуживание

Рекомендации: мастерская от 10x30 м; полезная площадь от 20x22,5 м.

Общая площадь – 750 м2

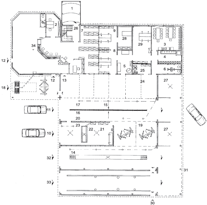
Средний сервис сети «Бош. Авто. Сервис»

1 – продажа и приемка на техобслуживание; 2 – бюро; 3 – бытовое помещение; 4 – раздевалка + умывальная; 5 – механическая мастерская; 6 – туалет; 7 – склад; 8 – мастерская по ремонту оборудования; 9 – умывальная; 10 – стенд для определения мощности; 11 – легковой автомобиль; 12 – вход для покупателей; 13 – вход для покупателей в отдел продажи; 14 – в цех; 15 – скат макс. 0, 75 %; 16 – желоб для отвода воды через отделитель масла и бензина; 17 – отвод отработанных газов;

18 – стенд для тормозных испытаний; 19 – двухплунжерный автомобильный подъемник с платформой; 20 – легкая строительная стенка со звукопоглотителем; 21 – керамическое покрытие пола; 22 – Tune Up; 23 – стенд для функциональных испытаний, определения мощности и анализа; 24 – керамическое покрытие пола; температура помещения 15 °C; освещенность 350 люкс

Рекомендации: мастерская от 12,5х15 м; полезная площадь от 7,5x25 м.

Общая площадь – 375 м2

Поделиться с друзьями: