Чтение онлайн

ЖАНРЫ

Малый автосервис: Практическое пособие
Шрифт:

Для сервисных предприятий грузовых автомобилей:

– грузовой автосервис, шиномонтажный уч-к (1 пост) – 28 кв. м.

– грузовой автосервис, шиномонтажный уч-к (3 поста) – 224 кв. м.

– грузовой автосервис. ТО и ТР (6 постов) – 324 кв. м.

Территория

Наиболее важным параметром является размер участка: стараются приобретать как можно больший, с учетом перспектив развития бизнеса. Обычные требования: на каждый пост по обслуживанию необходимо 100 кв. м всех помещений, 100 кв. м территории плюс 100 кв. м резервной территории. Размер участка и требования в отношении площади нужно тщательно изучить, ибо эти данные важны для проектирования и инвестиций.

Весьма важно оценить перспективы развития для того, чтобы в случае необходимости расширения цехов, имелись достаточные запасные площади. Общая площадь участка земли, необходимого для строительства, состоит из суммы площадей необходимых подразделений автосервиса. Площадь здания и полезная площадь территории (паркинг, площадь маневрирования автотранспорта, площадь перед въездом-выездом, площадь для особого использования) должны иметь возможность развития. Рекомендуется отношение 1/5 к 4/5 между площадью здания и свободной территорией. Возможность лучшего экономического развития – у квадратной или прямоугольной форм земельного участка. При этом, идеальный размер земельного участка – 50 х 60 м.

Расположение участка влияет в значительной степени на результат коммерческой деятельности. Выбирая земельный участок, нужно иметь ввиду следующие критерии. При выборе места для строительства нового здания для дилерской фирмы учитывают пять основных аспектов: место, условия, конфигурация, размеры, расходы.

Учитывают также:

– различные ограничения, действующие в районе: на строительство, на копание, на ограждение и т. д.;

– план развития жилого района, торгового района, делового района, план возможных перепланировок участков и т. д.;

– план строительства новых дорог и изменений в регулировании движения

потоков транспорта;

– рекомендации фирм по недвижимости, городских проектировщиков и архитекторов, юристов и т. д.

Расстояние от предприятий по обслуживанию грузовых автомобилей и автобусов (от границ их земельных участков) до жилых домов и общественных зданий следует принимать:

– грузовых автомобилей и автобусов городского транспорта – 100 м;

– легковых автомобилей, кроме автомобилей, принадлежащих гражданам, и автобусов – 50 м.

СТО должна быть легко доступна вся инфраструктура: электро-, водо-, теплоснабжение, канализация, телефон, общественный транспорт и т. д. Желательно, чтобы СТО находилась вблизи от оживленного места: торгового центра, магазина или автозаправочной станции. Такое расположение наиболее удобно для обслуживания клиентов. Преимущества в расположении положительно сказываются на бизнесе.

Доступность. Важно, чтобы до СТО можно было добраться общественным транспортом. Клиентам удобно посещать фирму, если она находится на приемлемом расстоянии или вблизи деловых, жилых или торговых районов. Въезд и выезд на территорию сервисного центра должен быть беспрепятственным.

Ценность участка. При выборе участка нужно учитывать его ценность с точки зрения рекламы и ее повышение после строительства. Наряду с размером земельного участка важна его конфигурация. Прямоугольные формы участков не только предоставляют хорошие условия их использования, но и являются более подходящими в отношении эксплуатационных издержек.

Соответствие назначению. Особую роль играет удобство земельного участка для строительства. Учитываются следующие критерии:

– участок должен быть защищен от наводнений, землетрясений, оползней и т. п.;

– участок должен быть на уровне прилегающей дороги;

– участок лучше выбирать ровный или с небольшим уклоном (от 1 до 2 %), чтобы не требовалась дорогостоящее перемещение земли при планировке;

– участки на склоне или же неровные участки требуют повышенных сумм на финансирование подготовки территории (подготовительные работы, планировка площади бульдозером, отвоз грунта, подпорные стенки, подземные гаражи и т. д.);

– желательно твердое основание, т. е. уплотненный грунт среднего, даже хорошего качества.

Расходы. В городах часто вообще не бывает земельных участков требуемых размеров, которые пригодны для строительства СТО, а если имеются, то высокие цены намного увеличивают затраты. При выборе подходящего земельного участка цена играет, конечно, важную роль, однако нельзя забывать о критерии “расположения” и “пригодности” участка.

Весьма важным фактором являются расходы по строительной подготовке. Речь идет, как правило, о расходах по:

– сооружению дорог (подъездных путей и стоянок),

– сооружению санитарно-технических устройств (канализации, присоединений к водопроводной сети, электрических вводов, магистральной линии для развода отопления, освещения подъездных путей и т. п.).

В ограждении территории предприятия, в котором предусмотрено 10 и более постов или хранение 50 и более автомобилей, следует предусматривать не менее двух въездов (выездов). Для предприятий с меньшим количеством постов или мест хранения автомобилей допускается устройство одного въезда на территорию. Проем ворот в ограде должен быть не менее 4,5 х 4,5 м. Ворота основного въезда на территорию предприятия следует размещать с отступом от “красной линии” на расстояние не менее наиболее длинной модели подвижного состава, включая автопоезда. Перед воротами основного въезда на территорию предприятия следует предусматривать накопительную площадку вместимостью не менее 10 % от максимального часового количества подвижного состава, прибывающего на предприятие. При расположении территории предприятия на земельном участке, ограниченном двумя проездами общего пользования, ворота основного въезда следует размещать со стороны проезда с наименьшей интенсивностью движения автотранспорта. Въезд на территорию предприятия должен предшествовать выезду, считая по направлению движения по проезду общего пользования. На территории предприятия с количеством 10 и более постов или 50 и более мест хранения автомобилей движение автотранспорта предусматривать в одном направлении без встречных и пересекающихся потоков. На территории предприятия, независимо от его мощности, допускаются встречные и пересекающиеся движения автотранспорта при их интенсивности не более 5 автомобилей в час.

Производственные помещения В проекте на строительство должны быть отражены мероприятия по охране труда, а также санитарно-гигиенические условия труда с указанием ожидаемых уровней воздействия на работающих вредных производственных факторов, методов контроля за их воздействием и мер по защите работающих, в том числе решения по нормализации параметров микроклимата и освещенности рабочих мест, снижению уровней производственных шумов и вибраций, загазованности и запыленности помещений, электромагнитных излучений, электростатического поля и т. д.

Конструкция здания Определяющим фактором для определения высоты СТО служат функциональные высоты мастерской и склада запчастей. Высота в свету цеха и склада запчастей измеряется до поперечных балок. Для ремонта автомобилей требуется высота 4,3 м (пространство для сборки под нижней кромкой поперечной балки). У склада запчастей эта высота получается, исходя из двух стеллажей высотой 2,1 м, расположенных друг над другом, и из сборочного пространства высотой минимум 10 см под нижней кромкой поперечной балки. Это определяет единую высоту мастерской и склада запчастей.

В производственных помещениях полы должны быть ровными и прочными, иметь покрытие с гладкой, но не скользкой поверхностью, удобной для очистки. Там, где используются кислоты, щелочи и нефтепродукты, полы должны быть устойчивы к воздействию этих веществ и не поглощать их. Полы в помещениях окрасочных участков, краскоподготовительных отделений, в помещениях для производства противокоррозионных работ, в газогенераторных, а также складов для хранения пожаровзрывоопасных материалов (жидкостей), баллонов с горючим газом должны быть выполнены из материалов, не дающих искры при ударе металлическим предметом. Целесообразно решение кровли в форме легких многослойных конструкций с необходимой теплоизоляцией, удовлетворяющих требованиям по статической нагрузке, действующих для данной местности.

Пример – описание существующего нового здания СТО:

Несущие конструкции здания представляют собой металлический каркас. Ограждающие конструкции стен – панели типа “Sandwich”, утеплитель “Isover”. Снаружи стены облицованы окрашенным профилированным оцинкованным листом. Фундамент ленточный из армированного монолитного железобетона класса В15, мелко заглубленный.

Малый сервис сети “Бош Авто Сервис”

Рекомендации: мастерская от 10 × 15 м; полезная площадь (магазин, приемка, комната отдыха, склад, вспомогательные помещения) от 5 × 25 м.

Общая площадь: 250 кв. м.

Допускается меньшая площадь, но с обязательным наличием двух (для сервиса с гарантией – четырех) рабочих мест (постов – 3,75 × 5,0 м) для а/м.

Цоколь – кирпичный с облицовкой декоративной плиткой. Снаружи стены облицованы крашеным профилированным оцинкованным листом.

Кровля – двускатная, покрыта оцинкованным профнастилом.

Окна – из алюминиевого профиля с однокамерными стеклопакетами.

Двери – стальные, облегченные, стекло простое (6 м), переплеты окрашены полимерной краской.

Ворота – стальные распашные, на линии диагностики – ворота с дверями.

Полы – мозаично-бетонные с полимерным искронедающим покрытием по армированному бетонному основанию.

Проект разрабатывался в соответствии с действующими нормами и правилами (СНиП, Санпин и др.) и предусматривает мероприятия, обеспечивающие взрывопожаробезопасность при эксплуатации здания.

– степень огнестойкости – III а

– функциональная пожарная опасность – Ф 5

– конструктивная пожарная опасность – С 1

– взрывопожарная опасность – В.

Наружная и внутренняя отделка.

Потолки в офисных помещениях – подвесные типа “Armstrong”.

Стены наружные – многослойные панели типа “Isora panels”, внутренние – в офисных помещениях гипсокартон с последующей окраской или оклейкой стеклообоями.

Полы в офисных помещениях – линолеум.

Цоколь – керамическая плитка или керамогранит.

Технико-экономические показатели:

Этажность – 2 этажа

Площадь застройки – 618,60 м2

Общая площадь здания – 1215,04 м2

Строительный объем – 6557,16 м3

Выезды и въезды

Створчатые ворота производственных помещений должны открываться наружу, а для въезда на территорию организации и выезда с нее – внутрь.

Выезд (въезд) машин из цокольных или подвальных этажей здания через первый этаж не допускается (разрешается только через отдельные наружные ворота).

Подъемные ворота должны быть оборудованы ловителями (фиксаторами), обеспечивающими удержание ворот в поднятом положении при обрыве тросов или порче механизма подъема и спуска.

Наружные ворота помещений для хранения, технического обслуживания, ремонта и проверки технического состояния АТС в районах со средней месячной температурой наружного воздуха в самый холодный месяц года минус 15 °C и ниже следует оборудовать воздушно-тепловыми завесами при следующих условиях:

– при количестве пяти и более въездов или выездов в час, приходящихся на одни ворота, в помещениях технического обслуживания, ремонта и проверки технического состояния машин;

– при расположении постов технического обслуживания на расстоянии 4 и менее метров от наружных ворот;

– при двадцати и более въездах в час, приходящихся на одни ворота, в помещении хранения машин,

кроме легковых машин, принадлежащих гражданам;

– при хранении в помещении пятидесяти и более легковых машин, принадлежащих гражданам.

Включение и выключение воздушно-тепловых завес должно осуществляться автоматически.

При температуре зимой ниже минус 25 °C должны дополнительно устраиваться тамбуры-шлюзы.

Въезды в производственные помещения не должны иметь порогов и выступов. Въездной уклон должен быть не более 5 %.

Функциональные зоны

Вот какие требования к обустройству СТО предъявляют зарубежные автокомпании.

Помещения и оборудование:

– количество, комплектность и состояние оборудования соответствует требованиям сертификации;

– для диагностики имеются тормозной испытательный стенд, мощностной испытательный стенд, стенд проверки геометрии осей с подъемником или смотровой ямой, переносной компьютерный тестер, мотор-тестер;

– оборудованы помещения для отдыха сотрудников, учебные классы;

– применяются рекомендованные компанией оргтехника и компьютерные системы.

Рекомендуемые размеры помещений приведены в таблице.

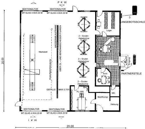
Пост приемки в ремонт Участок приемки машин в ремонт – это лицо фирмы. Впечатление заказчика будет служить хорошей или плохой рекламой. Проектируя это помещение, принимают во внимание, что клиент хочет видеть операции, проводимые с его машиной. Оборудование должно стоять на полу, не нужно возвышений. Диагностическое оборудование желательно устанавливать последовательно, в том порядке, в каком проверяют машину. Рекомендуется, чтобы в зоне приемки было достаточно места для машины с открытыми дверями и для прохода вокруг нее. Для легковых автомобилей размер места для приемки должен быть не менее 4 х 6 м. В зоне приемки необходимо обеспечить: достаточную освещенность, необходимую для осмотра; хорошую вентиляцию или вытяжку, чтобы двигатель машины мог работать на любых оборотах; не скользкий пол; стоки для воды и тающего снега, стекающих с машины; очерченные линии проходов для безопасности людей; отопление или охлаждение помещения. Следует отметить, что большинство автосервисов разделяют участок приемки и участок диагностики из-за разницы во времени работы с одним автомобилем: приемка – 5“20 минут, а диагностика – вплоть до целой рабочей смены.

Цех общего ремонта

Далее обобщены рекомендации ряда автокомпаний. Ширина цеха должна составлять минимум 20 м, так как ширина проезда между отдельными постами – 6 м и длина отдельных постов, находящихся с обеих сторон, составляет 7 м. Длину цеха определяет количество необходимых рабочих мест и постов, а также необходимых подсобных помещений площадью минимум 20 % от общей площади цеха. Основанием для определения количества необходимых рабочих мест и постов является “проходимость” автомобилей через мастерскую или суточный объем ремонтных работ.

Минимальные размеры основных рабочих постов:

Ширина въезда в цех составляет 4,0 м, высота – минимум 3,5 м.

Посты для общего ремонта и обслуживания распределяют таким образом, чтобы посты, отведенные для “быстрого сервиса”, находились ближе к кабинету приемщика, а остальные – ближе к цеху ремонта агрегатов и электрооборудования.

При организации перемещения машин по цеху и территории с точки зрения удобства и безопасности рекомендуется предусматривать:

– однорядное движение от въезда до выезда;

– въезд и выезд в каждый пост, не мешающий остальным;

– посты можно располагать с одной стороны помещения в один ряд или в два ряда с проездом между ними;

– при однорядном расположении посты могут располагаться перпендикулярно к проезду или под углом к нему. В первом случае проезд должен быть шириной 6 м, во втором – может быть уменьшен до 5,4 м;

– размеры постов для легковых и малых грузовых – 4 х 6 м, для средних грузовых, микроавтобусов и т. п. – 4,5 х 8,5 м;

– проход вокруг поста – 0,5 м;

– расстояние от стен дополнительно 0,4 м.

Наиболее экономичное использование площади получается при двухрядном расположении постов и одним проездом между ними.

Пол цеха должен быть стойким к истиранию, кислотостойким, стойким к действию жиров, масел и воды. Наиболее подходящими для этой цели являются керамические плитки.

Мойку цеха облегчает канализационный желобок, находящийся посредине дороги и соединяющийся с маслоуловителем или станцией очистки сточных вод сервисного отдела. Освещение цеха: естественное – через застекленные стены, искусственное – фонари верхнего света. Осветительные приборы должны располагаться на границах сервисных постов для того, чтобы их свет не загораживался во время работ в моторном отсеке. Совершенно невыгодно расположение освещения над серединой сервисного поста. Внутренние стены цехового здания окрашивают до высоты примерно 2 м моющимся красочным покрытием или же они покрыты кафельными плитками. Абсолютно необходимо обеспечить прямое соединение цехового помещения с офисом СТО, со складом запчастей, а также с подсобными помещениями и санитарно-техническими помещениями. Для обеспечения требуемых условий воздушной среды следует предусматривать общеобменную приточно-вытяжную вентиляцию с механическим побуждением с учетом режима работы предприятия и количества вредных выделений, устанавливаемых в технологической части проекта. В цеховом помещении нужно установить вытяжную установку для отвода отработавших газов работающих двигателей.

Подсобные помещения

Необходимо предусмотреть площади для стенда проверки эффективности действия тормозной системы, для установки проверки мощности двигателя и помещения для мойки автомобилей. Из-за производимого шума и грязи эти рабочие помещения не следует помещать в общей рабочей зоне. Более выгодно их расположение в отделенных помещениях и создание самостоятельного функционального блока. Оснащение цеха рабочими и измерительными приборами требует наличия соответствующей подсобной площади для стационарных и передвижных установок. Хорошо оснащенный цех требует наличия подсобной площади в размере примерно 10–20 % от общей площади цеха.

При проектировании цеха по ремонту агрегатов: двигателей, КПП, мостов предусматривают его расположение вблизи основной ремонтной зоны; размещение в нем мойки для агрегатов и деталей, достаточно пространства, чтобы механики могли свободно перемещаться вокруг верстаков и агрегатов; хорошее освещение, достаточное для точной работы. Помещение должно быть защищено от попадания пыли и посторонних предметов. Для повышения безопасности и качества работ цех всегда должен быть чистым и в хорошем порядке. Во избежание травматизма в цеху нежелательны всякого рода пороги и ступеньки, рельсы для тележек, подвозящих агрегаты. Желательно перевозку агрегатов выполнять небольшим электропогрузчиком. Минимальная площадь цеха – около 20 м2.

Помещению для подзарядки аккумуляторов и ремонта электрооборудования с тестерами, зарядным устройством, хорошей вытяжкой, с перегородкой между зарядным участком и остальным помещением рекомендуют выделять не менее 4 м2. Для работы с кислотными и щелочными аккумуляторами следует предусматривать отдельные аккумуляторные участки, расположенные в трех сообщающихся между собой отдельных помещениях, изолированных от других помещений, оборудованных приточно-вытяжной вентиляцией, одно – для ремонта, другое – для зарядки, третье – для хранения кислот (щелочей) и приготовления электролита. При одновременном заряде не более 10 аккумуляторных батарей, допускается иметь только два помещения: для ремонта и приготовления электролита, при этом зарядку аккумуляторов следует проводить в помещении ремонта в вытяжных шкафах при включенной вытяжной вентиляции, сблокированной с зарядным устройством. Помещение для аккумуляторных работ должно иметь вход, оборудованный тамбуром с дверями, открывающимися наружу.

Для сосредоточения в одном месте контроля электроснабжения, водоснабжения, подачи сжатого воздуха устраивают специальные места. Кроме общих выключателей освещения на центральном щите желательно также предусмотреть выключатели на каждом рабочем месте. Это помогает экономить энергию.

Если компрессор невозможно установить в отдельном помещении, его помещают в шумоизолирующий ящик, предусмотрев хорошую вентиляцию для отвода тепла. Размещение компрессора стараются сделать так, чтобы трубопроводы от него были как можно короче. Примерные площади: компрессорная – 3 м2, бойлерная – 4 м2, инструментальная – 5 м2, помещения для хранения гарантийных дефектных деталей – 10 м2.

Следует предусмотреть отдельные рабочие посты для осуществления нестандартных услуг (сборка специальных принадлежностей, специализированных дополнительных конструкций кузова и т. д.).

Особое внимание нужно уделять технике безопасности труда на рабочих местах. Это в первую очередь касается “мокрых” постов и помещений с возможным наличием взрывчатых веществ. Обозначение этих помещений выполняется согласно соответствующим нормам и инструкциям.

Мойка Мойку размещают отдельно от всех постов. При размещении постов мойки и уборки машин на открытой площадке или под навесом вертикальной планировки должен быть обеспечен уклон не менее 3 % в сторону трапов, что исключит распространение сточных вод от мойки подвижного состава по территории предприятия. Мойка автомобилей может использоваться и дои после ремонта, а также для коммерческого обслуживания клиентов. Мойка может быть ручная и механизированная. Необходима мойка с обработкой и кузова, и днища, подкрылок колес и т. д. В крупных фирмах рекомендуется установка автоматизированных моек. При проектировании помещений для моек предусматривают дренаж, канализацию и очистку стоков. Существуют мойки с замкнутым циклом: использованная вода очищается и применяется снова. Размеры – 4,5 х 7 м для ручных моек, 6x10 м для автоматизированных. Но размеры во всех случаях следует уточнить с поставщиками оборудования. Минимальная комплектация моечного поста: ручная мойка высокого давления (возможна установка нескольких), пылесос (возможна установка нескольких), система рециркуляции и очистки воды. Приблизительный срок окупаемости – 6—10 месяцев. Оптимальная комплектация моечного участка: автоматическая автомобильная мойка портального или туннельного типа, ручная мойка высокого давления, компрессор, пылесос, система рециркуляции и очистки воды. Приблизительный срок окупаемости – 2–2,5 года, (туннельный тип – за 1–1,5 года).

Поделиться с друзьями: