Чтение онлайн

ЖАНРЫ

Карты метро и нейронные сети. Теория графов
Шрифт:

Точками также можно обозначить наружное пространство или лестницу. Если речь идет о многоэтажных домах, то каждому этажу можно поставить в соответствие граф смежности и соединить точки, доступные с разных этажей, не прямыми, а ломаными линиями, которые будут обозначать лестницы.

Анализ графов в общественных зданиях поможет определить степень доступности различных отделов, расположение помещений — буфета, библиотеки,

кинозала, а также пожарных лестниц.

После того как построен граф смежности и нарисован эскиз с нанесенными размерами, эскиз можно сопоставить с графом, где оцениваются размеры помещений согласно критерию, который объясняется ниже.

Обратите внимание, что все наши примеры очень просты. Графы особенно интересны при рассмотрении сложных ситуаций: в этом случае они позволяют существенно упростить анализ.

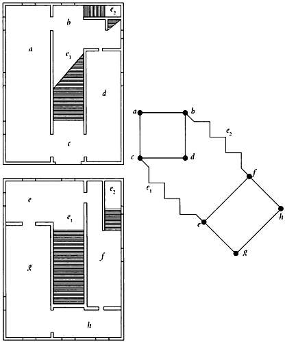
Нужно отметить вершины по числу стен, расположенных на чертеже горизонтально, а также две особые вершины — начальную и конечную. Все дуги графа должны быть направлены сверху вниз. Из каждой вершины выходят дуги, направленные вниз, на которых указываются размеры стен, расположенных на чертеже горизонтально.

На каждой вершине внутри круга указывается расстояние между стеной, соответствующей этой вершине, и следующей стеной, расположенной на чертеже горизонтально. В начальной вершине, точнее на входящем ребре, указывается общая ширина помещений, а внутри круга — их общая длина. В конечной вершине длина должна быть равна нулю, а на исходящем ребре должна быть нанесена общая ширина помещений. Заметим, что граф будет составлен неверно, если сумма значений для ребер, исходящих из данной вершины, будет не равна сумме значений для входящих ребер. Такие графы позволяют проверить правильность внутренних размеров помещений.

Еще один пример графов смежности представлен на следующих иллюстрациях.

Интерес в архитектуре также представляют графы, позволяющие оценить оптимальное расстояние между сообщающимися элементами. Это направление, особый вклад в развитие которого внес Т. Тейбор, описывает в общем виде оптимальное распределение архитектурных элементов, позволяющее сократить пути их обхода.

В небольшом масштабе эта задача не представляет интереса, но в ситуации, когда, например, на одном этаже офисного здания требуется разместить помещения, принадлежащие банку, министерству, администрации города и другим структурам, с помощью анализа стандартных маршрутов можно найти оптимальное расположение помещений, которое поможет упростить взаимодействия между организациями. Например, офисы одинаковой площади можно расположить на этаже в соответствии с одной из следующих пяти схем и эквивалентных им графов смежности.

Изучив расстояния между офисами (здесь мы имеем в виду реальное расстояние, которое нужно пройти, а не евклидово), можно определить, при каком из пяти расположений суммарный путь, который проходят сотрудники всех офисов, минимален. В экспериментах Тейбора использовалась скорость 1,5 м/с при перемещении по этажу и 0,3 м/с при перемещении по лестницам. Подобный принцип используется в урбанистике при проектировании крупных торговых центров и пешеходных зон, регулировании плотности транспортных потоков и для решения других подобных задач.

* * *

ОТКРЫТЫЙ ВОПРОС

В теории графов применительно к архитектуре остается открытым вопрос о разбиении квадрата на прямоугольники горизонтальными и вертикальными линиями и определении всех возможных разбиений для каждого конкретного случая. Отметим, что цель задачи — найти не все возможные конечные графы, а только те, которые соответствуют допустимым разбиениям на плоскости.

Обозначим за n число прямоугольников,

на которые мы хотим разбить квадрат. Было подсчитано, что для n = 1, 2, 3, 4, 5 и 6 существует соответственно 1, 1, 2, 7, 22 и 117 различных способов разбиения, которые не являются топологически эквивалентными.

Для >= 7 эта задача до сих пор не решена. По некоторым оценкам,

для n = 7 существует около 700 решений, для n = 8 — примерно 10000, для n = 9 — порядка 250000 решений, но корректность подобной экстраполяции пока не подтверждена). Сегодня ученые занимаются поиском компьютерных алгоритмов решения этой задачи.

* * *

Графы в урбанистике

Кристофер Александер — известный американский архитектор и преподаватель, который в 70-е годы XX века развил идею о том, как графы, компьютерные программы и вычислительные мощности помогут рационализировать урбанистику и анализ архитектурных проектов. В его книге «Заметки о синтезе формы», которая приобрела огромную популярность, при анализе форм использовались графы. Особенно важной стала его статья «Город — не дерево», в которой, используя деревья из теории графов в качестве метафоры, Александер рассуждает на тему роста городов и озвучивает следующую гипотезу:

«Думаю, что естественно развивающийся город имеет структуру полурешетки… Искусственно спланированные города по структуре напоминают дерево».

По мнению Александера, город подобен сложной системе, в которой между различными единицами, группами и подгруппами существуют отношения иерархии. Александер считает, что в естественных городах объекты и коммуникации, которые относятся к двум частям системы и более, являются зонами общего использования, в то время как в искусственных городах наложение двух единиц друг на друга не приводит к появлению совместно используемой единицы.

Эти различия можно показать на следующем примере. В старых университетах, расположенных в центре города, библиотеки, магазины и дома, где живут студенты и преподаватели, находятся в окрестностях университета, но перемежаются другими городскими зданиями. Тем самым университет постоянно взаимодействует с обычными жителями города. Магазины, светофоры, парки используются всеми жителями города. Современные университетские городки, как правило, создаются в автономных зонах. Как следствие, в университетском городке появляется жилая, коммерческая, университетская зона. Жизнь университета подчиняется иерархической организации пространства, различные сообщества оказываются изолированными и не вступают во взаимодействия.

Классические примеры древовидных городов — это Большой Лондон Лесли Патрика Аберкромби и Джона Форшоу, план Токио авторства Кэндзо Тангэ, план города Бразилиа архитектора Лусио Косты, план Чандигарха, созданный Ле Корбюзье, и другие.

План Токийского залива авторства японского архитектора Кэндзо Тангэ (1960).

Александер пришел к выводу, что структура города должна быть сложнее, чем древовидная:

«В представлении человека дерево — это самое простое средство представления сложных планов. Но город не является, не может и не должен быть деревом. Город — это вместилище жизни».

Графы в социальных сетях

Графы также находят применение в социологии, антропологии, географии, экономике, теории коммуникации, социальной психологии и многих других сферах, где анализируются социальные сети: элементы социальной структуры (люди, организации, сообщества, группы) представляются в виде узлов графа, а отношения между ними (организационные, экономические зависимости, уровни принятия решений, коммуникации) — в виде ребер, соединяющих вершины графа.

Поделиться с друзьями: